Строим в республиках Марий Эл,
Татарстан, Чувашия
и Кировской области.

Проект №65 дома на продажу , г.Казань , Новые Салмачи

Характеристики

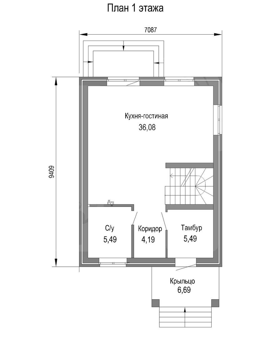
  • Общая площадь 100.00 м²
  • Габариты 7.08 м x 9.40 м
  • Этажность 2 этажа
  • Крыльцо
  • Цена "Стандарт" от 6 500 000.00
  • Цена "Премиум" от 8 000 000.00

Планы этажей

Галерея

Ход строительства

Пакеты услуг и их стоимость

Стандарт

  • Базовая цена 65 000.00 ₽/м²
  • Гараж 40 000.00 ₽/м²
  • Терраса 35 000.00 ₽/м²
  • Крыльцо 25 000.00 ₽/м²

Премиум

  • Базовая цена 80 000.00 ₽/м²
  • Гараж 40 000.00 ₽/м²
  • Терраса 35 000.00 ₽/м²
  • Крыльцо 25 000.00 ₽/м²
СтандартПремиум
Проект дома
Фундамент (буронабивные сваи с монолитным железобетонным ростверком)
Стены (керамический кирпич, утеплитель, облицовочный кирпич)
Перекрытия (полы первого этажа – монолитные ж/б, межэтажное – ж/б плиты, чердачное – дерево)
Вентиляционные каналы
Кровля (металлочерепица, утепление кровли, или чердачного перекрытия)
Перегородки (гипсовые пазогребневые панели)
Пластиковые окна с отливами
Входная металлическая дверь
Лестница (металлический каркас)
Отопление: теплый пол, радиаторы, газовый котел
Система водоснабжения
Система канализации
Система электроснабжения
Штукатурка стен по маякам
Чистовая стяжка полов с утеплением

Во все стадии готовности дома включены: доставка материалов, услуги спецтехники, установка строительных лесов, уборка мусора.